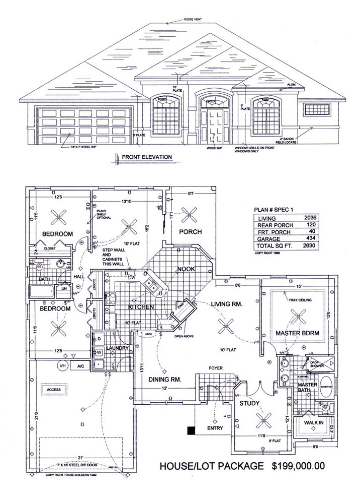
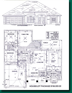
Home and Lot packages starting at $199,000

 

 

This three bedroom two bath quality home from Trane Builders LLC. features a large master suite with a garden tub, his and hers closets and vanities. Formal Living/Dining area plus Kitchen and Nook for casual times. The kitchen offers rich wood cabinets with corian tops. Sturdy reinforced concrete block construction with stucco finish completes this beauty.

Please click on plan to enlarge

This open floor plan is perfect for a growing family or couple that likes their space. Three bedroom and two bath. The master suite is comfortable with a large walk-in closet and spacious bath with soaker tub. The study can be a great home office, relaxing retreat, or multi-purpose room. The kitchen has wood cabnets with corian counter tops and oversized pantry. The outside has an extensive landscape package with sprinkler system.
The most important feature is the quality workmanship in a home built by Trane Builders.LLC.

Please click on plan to enlarge

This home features a large great room with 10' ceilings that open to an oversized kitchen with wood cabinets and corian counter tops. This three bedroom two bath home has it all. Large master suite with tray ceiling, large walk-in closet and a guest bath that doubles as a pool bath with many upgraded features. This home is spacious throughout and will fit any lifestyle.

Please click on plan to enlarge